№ 123 от 17.09.2025
Размер:
AAA
Цвет: CCC
Изображения Вкл.Выкл.
Обычная версия сайта
Поиск
Пермский край, с. Юсьва,
ул.Красноармейская, д.14

Наш адрес
+7 (34 246) 2-75-35
 

Приемная

Документы

№ 123 от 17.09.2025

новый герб
  ДУМА

ЮСЬВИНСКОГО МУНИЦИПАЛЬНОГО ОКРУГА

ПЕРМСКОГО КРАЯ

 

РЕШЕНИЕ

 

17.09.2025                                                                                                          № 123

 

О внесении изменений в Правила благоустройства территории Юсьвинского муниципального округа Пермского края

 

В соответствии с Федеральным законом от 20.03.2025 № 33-ФЗ                    «Об общих принципах организации местного самоуправления в единой системе публичной власти», Дума Юсьвинского муниципального округа Пермского края РЕШАЕТ:

 

1.                Внести в Правила благоустройства территории Юсьвинского муниципального округа Пермского края, утвержденные решением Думы Юсьвинского муниципального округа Пермского края от 19.03.2020 г. № 150, следующие изменения:

1.1.         подраздел 3.2 раздела III изложить в новой редакции:

«3.2. Санитарное содержание территории муниципального округа

3.2.1. Порядок, нормы и требования раздела не распространяются на отходы производства (остатки сырья, материалы, полуфабрикаты), которые используются владельцами в хозяйственных целях непосредственно в самой организации, а также радиоактивные, чрезвычайно опасные, высокоопасные и биологические отходы. Порядок обращения с медицинскими отходами лечебных учреждений определяется в соответствии с СанПиН 2.1.3684-21 "Санитарно-эпидемиологические требования к содержанию территорий городских и сельских поселений, к водным объектам, питьевой воде и питьевому водоснабжению, атмосферному воздуху, почвам, жилым помещениям, эксплуатации производственных, общественных помещений, организации и проведению санитарно-противоэпидемических (профилактических) мероприятий".

3.2.2. Территория муниципального округа подлежит регулярной очистке от отходов в соответствии с действующими санитарно-эпидемиологическими требованиями и санитарными правилами содержания территорий муниципальных образований.

3.2.3. Сбор, транспортирование, обработку, утилизацию, обезвреживание, захоронение твердых коммунальных отходов (далее -ТКО) самостоятельно или с привлечением операторов по обращению с ТКО осуществляет региональный оператор в соответствии с региональной программой в области обращения с отходами, в том числе с ТКО, и территориальной схемой обращения с отходами;

3.2.4. Производители отходов - физические лица, юридические лица, независимо от форм собственности, находящиеся на территории муниципального округа, обязаны заключить договор на оказание коммунальной услуги по обращению с ТКО с региональным оператором;

3.2.5. Владельцы объектов, расположенных на территории муниципального округа, обязаны обеспечить в установленном порядке вывоз отходов, в том числе ТКО и КГО, жидких отходов, образующихся в результате функционирования объектов;

3.2.6. На территории муниципального округа запрещается:

3.2.6.1. накапливать и размещать отходы производства и потребления, снег, грунт, строительные отходы, ветки, обрезки деревьев и прочие виды отходов в несанкционированных местах;

3.2.6.2. сжигать отходы как внутри контейнеров, так и на территории контейнерной площадки, местах установки контейнеров, вокруг них, во всех других местах, не оборудованных для этих целей;

3.2.6.3. захламлять и загрязнять водные объекты и их прибрежные зоны;

3.2.6.4. использовать специализированный транспорт, предназначенный для вывоза отходов, не по прямому назначению;

3.2.6.5. складировать тару, промышленные, ТКО на местах (площадках) накопления ТКО без заключения соответствующего договора на вывоз ТКО с региональным оператором по обращению с ТКО на территории Пермского края;

3.2.6.6. складировать на местах (площадках) накопления ТКО, в том числе в контейнеры горящие, раскаленные или горячие отходы, снег и лед, строительный мусор, ветки и обрезки деревьев, уличный смет, ртутьсодержащие, радиоактивные, биологические и медицинские отходы, а также иные отходы, которые могут причинить вред жизни и здоровью лиц, осуществляющих погрузку (разгрузку) контейнеров, повредить контейнеры, мусоровозы или нарушить режим работы объектов по обработке, обезвреживанию и захоронению ТКО.

3.2.7. Лица, разместившие отходы в несанкционированных местах, обязаны за свой счет производить уборку и очистку данной территории, а при необходимости - рекультивацию земельного участка.

3.2.8. В случае невозможности установления лиц, разместивших отходы производства и потребления в несанкционированных местах, удаление отходов и рекультивация этих мест производятся собственником и иным владельцем земельного участка, при его отсутствии – подрядная организация за счет средств, предусмотренных в бюджете Юсьвинского муниципального округа на эти цели.

3.2.9. На территории муниципального округа должны быть оборудованы места (площадки) накопления ТКО) и (или) специальные площадки для накопления КГО. Места (площадки) накопления ТКО должны соответствовать требованиям законодательства Российской Федерации в области санитарно-эпидемиологического благополучия населения и иного законодательства Российской Федерации.

3.2.10. Размещение контейнерных площадок на земельных участках, находящихся в муниципальной собственности, и земельных участках (землях), государственная собственность на которые не разграничена, осуществляется в соответствии с территориальной схемой обращения с отходами.

Создание и согласование новых мест (площадок) накопления ТКО производится в соответствии с действующим федеральным законодательством, законодательством Пермского края и нормативными правовыми актами администрации Юсьвинского муниципального округа Пермского края.

Места накопления и сбора ТКО определяются схемой размещения мест (площадок) накопления ТКО, утвержденной органом местного самоуправления, и учитываются администрацией Юсьвинского муниципального округа Пермского края в реестре мест (площадок) накопления ТКО.

3.2.11. Обязанность по организации и содержанию мест (площадок) накопления и сбора ТКО, в том числе контейнерных площадок, специальных площадок для складирования КГО, необходимых для содержания многоквартирного дома и прилегающей территории, лежит на собственниках помещений многоквартирного дома в соответствии с правилами содержания общего имущества в многоквартирном доме, установленными Правительством Российской Федерации.

3.2.12.Бремя организации и содержания мест накопления и сбора ТКО, в том числе контейнерных площадок, специальных площадок для складирования КГО и территорий, прилегающих к месту погрузки ТКО, не входящих в состав общего имущества собственников помещений в многоквартирных домах, несут собственники земельного участка.

3.2.13. Контейнерные площадки, организуемые на территории муниципального округа, должны иметь подъездной путь, твердое (асфальтовое, бетонное) покрытие с уклоном для отведения талых и дождевых сточных вод, а также ограждение, обеспечивающее предупреждение распространения отходов за пределы контейнерной площадки.

3.2.14. Ограждение места (площадки) накопления отходов выполняется с трех сторон высотой не менее 1,0 м. Ограждения мест (площадок) накопления отходов могут быть следующих видов: металлический каркас со стенками из профнастила, либо металлической сетки, либо металлических декоративных панелей (реек), цветовое решение ограждения - зеленого цвета.

3.2.15. В случае раздельного накопления отходов на контейнерной площадке их владельцем должны быть предусмотрены контейнеры для каждого вида отходов или группы однородных отходов, исключающие смешивание различных видов отходов или групп отходов, либо групп однородных отходов.

3.2.16. Все вновь устраиваемые площадки накопления ТКО, организуемые на территории муниципального округа, должны быть выдержаны в едином стиле.

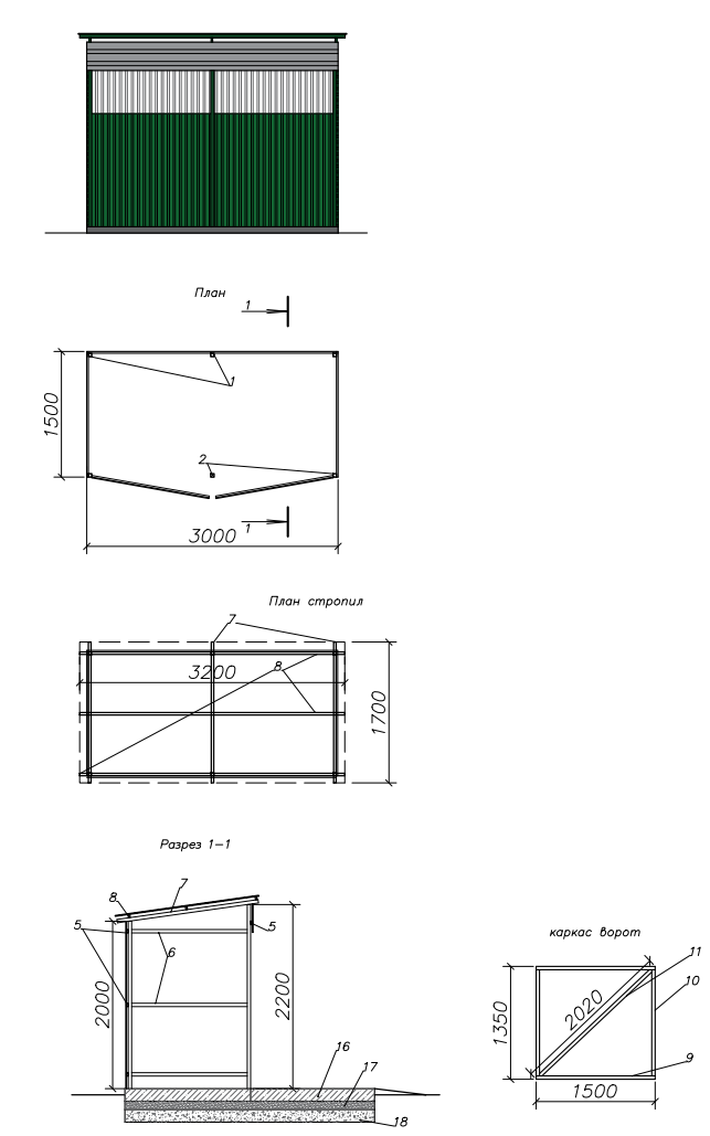
3.2.17. Графическое изображение мест (площадок) для накопления твердых коммунальных отходов закрытого типа (с навесом (кровлей) под установку контейнерных баков приведено ниже:

а) на 4 контейнера объемом 0,75куб.м. без отсека для КГО

 

б) на 3 контейнера объемом 0,75куб.м. без отсека для КГО

 

в) на 2 контейнера объемом 0,75куб.м. без отсека для КГО

 

 

3.2.18. Расстояние от контейнерных и (или) специальных площадок до многоквартирных жилых домов, индивидуальных жилых домов, детских игровых и спортивных площадок, зданий и игровых, прогулочных и спортивных площадок организаций воспитания и обучения, отдыха и оздоровления детей и молодежи должно быть не менее 20 метров, но не более 100 метров; до территорий медицинских организаций в городских населенных пунктах - не менее 25 метров, в сельских населенных пунктах - не менее 15 метров. При невозможности соблюдения указанных расстояний допускается изменение расстояний от контейнерной площадки до нормируемых объектов, но не более чем на 25% на основании проведенной санитарно-эпидемиологической экспертизы.

3.2.19. Размер контейнерной площадки определяется ее задачами, габаритами и количеством контейнеров, используемых для сбора отходов, но не более чем предусмотрено санитарно-эпидемиологическими требованиями.

3.2.20. Требования к местам (площадкам) накопления ТКО:

3.2.20.1. контейнеры, ограждения контейнерных площадок должны быть в технически исправном состоянии, обеспечивающем надлежащую эксплуатацию объекта, их поверхности не должны иметь дефектов, сколов, коррозии металлических элементов;

3.2.20.2. к контейнерным площадкам круглосуточно должен быть обеспечен свободный подъезд;

3.2.20.3. эксплуатация контейнеров с переполнением запрещается. В случае систематического переполнения контейнеров, потребитель вправе уведомить регионального оператора, администрацию Юсьвинского муниципального округа Пермского края, которые обязаны принять меры по недопущению дальнейшего систематического переполнения контейнеров;

3.2.20.4. уборка просыпавшихся и (или) выпавших ТКО при погрузке отходов в специальный транспорт производится региональным оператором (оператором) незамедлительно.

3.2.21. Срок временного накопления несортированных ТКО определяется исходя из среднесуточной температуры наружного воздуха в течение 3 суток:

плюс 5 °C и выше - не более 1 суток;

плюс 4 °C и ниже - не более 3 суток.

3.2.22. Вывоз КГО обеспечивается региональным оператором, в том числе по заявкам потребителей, либо самостоятельно потребителями на специальные площадки для складирования КГО, указанные в договоре на оказание услуг по обращению с ТКО.

3.2.23. Содержание территории, на которой расположены места (площадки) накопления ТКО, осуществляется владельцами контейнерных площадок в пределах загрязнения прилегающей территории по периметру от границ места (площадки) накопления ТКО, но не более чем 15 метров.

3.2.24. На территории контейнерных площадок запрещается:

3.2.24.1. выливание в контейнеры жидких отходов и воды;

3.2.24.2. складирование КГО, строительных отходов, растительных отходов (листвы, травы, веток, коры, стволов деревьев и пр.);

3.2.24.3. сжигание ТКО внутри контейнеров и вблизи мест для сбора и (или) накопления отходов;

3.2.24.4. промывка контейнеров на контейнерных площадках.»;

1.2. в подразделе 3.6 раздела III:

1.2.1. пункт 3.6.2 изложить в новой редакции:

«3.6.2. Физические и юридические лица, владеющие на праве собственности и ином законном основании земельными участками, обязаны:

3.6.2.1. обеспечить проведение мероприятий по уничтожению борщевика Сосновского в очагах произрастания на земельных участках;

3.6.2.2. обеспечить недопущение расширения ареала произрастания борщевика Сосновского на земельных участках;

3.6.2.3. обеспечить допуск физических и юридических лиц, оказывающих услуги по уничтожению борщевика Сосновского в соответствии с государственным, муниципальным контрактом, на очаги произрастания борщевика Сосновского для проведения мероприятий по предотвращению распространения и уничтожению борщевика Сосновского на наиболее засоренных земельных участках;

3.6.2.4. соблюдать требования законодательства и проводить на постоянной основе на земельных участках мероприятия по предотвращению распространения и уничтожению борщевика Сосновского, в том числе путем выкапывания, выкашивания, обрезания соцветий, мульчирования укрывными материалами, выполнять требования уполномоченных должностных лиц о проведении мероприятий, а также предписания, выданные должностными лицами контрольно-надзорных органов.»;

1.2.2. пункт 3.6.4 изложить в новой редакции:

   «3.6.4. Уполномоченные лица администрации Юсьвинского муниципального округа осуществляют мероприятия муниципального контроля, направленные на предупреждение, выявление и пресечение нарушений обязательных требований, повлекших массовое распространение борщевика Сосновского, вносят предписания, привлекают к административной ответственности лиц, допустивших не проведение мероприятий по предотвращению распространения и уничтожению борщевика Сосновского в границах Юсьвинского муниципального округа.»;

1.3.   раздел X «ПРАВИЛА СОДЕРЖАНИЯ ДОМАШНИХ ЖИВОТНЫХ И ПЧЕЛ» исключить.

 

2. Направить настоящее решение главе муниципального округа – главе администрации Юсьвинского муниципального округа Пермского края для подписания и опубликования.

3. Опубликовать настоящее решение на официальном сайте муниципального образования Юсьвинский муниципальный округ Пермского края в информационно-телекоммуникационной сети «Интернет».

4.                Настоящее решение вступает в силу со дня его официального обнародования.

 

Председатель Думы Юсьвинского муниципального округа Пермского края

                                       О.И. Власова

Глава муниципального округа -      глава администрации Юсьвинского муниципального округа Пермского края

                                           Н.Г. Никулин

 

Дата размещения:  18.09.2025

Возврат к списку




Решения Думы 2020 год

Решения Думы  2019 год

Решения Земского Собрания с 2008 по 2019 годы
Опрос Результаты опроса населения